
國悅府410㎡新中式 | 國風古典撞上現代元素,呈現一派低調奢華

“留白”是中國藝術形式美中最重要的構成要素,而新中式是以“空白”為載體進而渲染出更美的意境
本案為國悅府410㎡新中式設計,便將這種精神內核延伸到“至精歸于至簡”的美學意境,并融合多元的設計元素,來展現其返樸歸真、順應自然的特點。
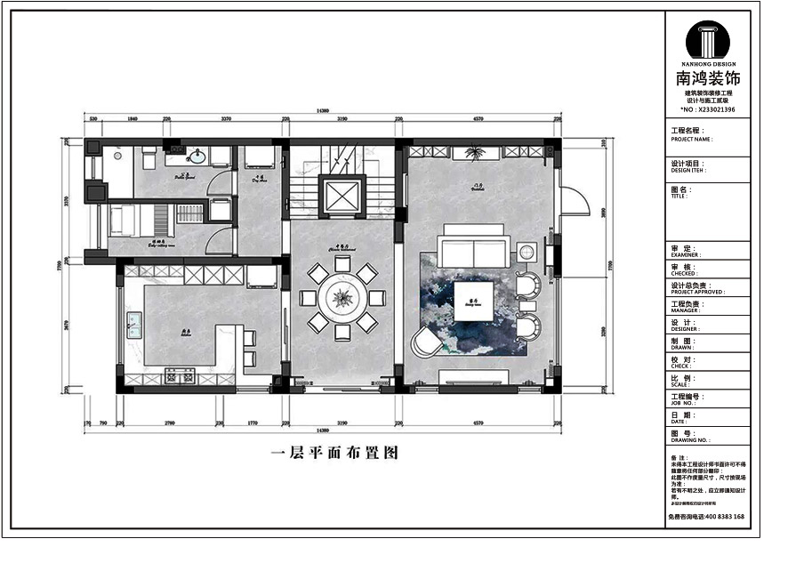
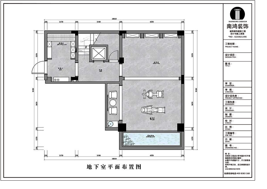
戶 型 圖







入戶門廳端景設置一幅圓形中式畫,蝶戀花的意象將東方意境的清幽雅致傳神地表達出來,喚醒人們內心深處的依戀與回歸。




一層的大客廳包含接待、聚會的功能,素墨的色彩與紋理相協,現代形制中又不乏綿綿古韻,設計語言上以直線條為主,塊面的分割予人通透干練的感受。


客廳的風格上提取了中式文化的精髓,再注入現代生活的氣息,通過空間的營造,傳遞出一種低調奢華,簡約貴氣的美感。


餐廳處的格調、秩序與客廳互為映襯、各自延伸,以營造統一性的美,餐桌呈圓弧形,一派包容與充滿凝聚力的氣息自此而生。



廚房,白色吊柜搭配木質地柜,細致莊重,現代化的內嵌廚電打造出設備齊全的料理空間,靠門一側還設計了吧臺。


主臥在三層,背景以一副山水畫徐徐展開,搭配傳統的中式床與同色系地毯,碰撞出富有人文氣息兼具現代品質感的詩意禪韻。


主臥是包含書房與衣帽間的套間結構,書房處,書籍藏物整齊列架,倚墻而立,足以令人在這隅沉浸式的精神之地中潛心工作學習。


兩間次臥有別于主臥的古色古香,在設計上更偏向西方化的品質追求,孔雀藍的低調優雅與綠瓷色的清新雅致各有所長,賦予兩處房間獨立的個性氣質。


位于夾層的茶室空間,天然石材、木材的紋理呈現出的質感美,使空間流瀉出沉靜淡然的氣息。


位于地下室的健身區設計,垂直挑高的專屬獨立空間,成為屋主日常鍛煉身體的最佳休閑場所。
| 地址:國悅府
| 面積:410㎡
| 風格:新中式
| 設計施工:浙江南鴻裝飾
免費
免費申請戶型規劃
專屬設計師免費1對1全程服務
已經有3772人申請
24小時免費咨詢電話
400-8800-618
你家預算
108080元