
190方絕美江景房,超大公空間,華麗主臥室,我的家由我定義!

// 項目信息 //
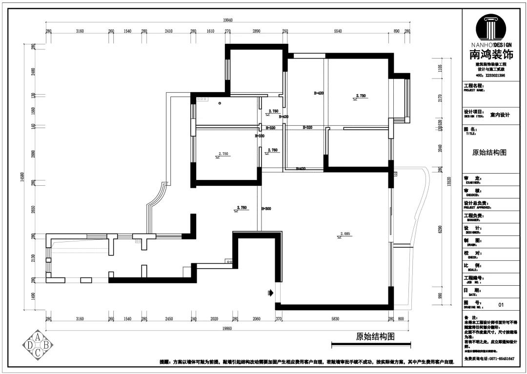
地址 / 觀瀾時代 戶型 / 三室兩廳 面積 / 190㎡ 風格 / 現代中式 設計施工 / 浙江南鴻裝飾 幸福的家庭總是相似的, 但幸福的定義, 對每個人來說或許都不盡相同。 對本案的女屋主來說, 窗外是海天一線的絕色風景, 窗內是三只愛貓的追逐嬉戲, 閑來品茶凝思,翻卷細讀, 就這樣把日子過成了一首詩。 本案結合現代風的輕奢時尚與中式風的古典雅致,色彩搭配上也不落俗套,整體取用冷硬中性色的基礎上,各個空間都加入了許多個性色彩,層次感非常強! 戶 型 圖 ▲原始戶型圖 ▲平面設計圖 設計說明: ①餐廚之間新建墻體,增加儲藏室的空間; ②客廳包進陽臺做落地窗,將房子的景觀優勢發揮到最大; ③公區域通往臥室的內廳過道整體往南移,主臥釋放一部分面積留給客房,平衡主客房的空間大小。 玄 關 Entrance 原戶型中并沒有玄關區域,我們在茶室旁砌筑了這道168cm*235cm的墻體,以中式常見的借景手法打造門廳,并將茶室區的柜子延伸過來作玄關柜使用。 客 廳 Living Room 一氣連江色,寥寥萬古清。客廳將陽臺包進做落地窗,再加一把面料舒適的躺椅,每日觀覽著江波浩渺,俗世的煩擾轉瞬就能被驅散得干干凈凈。 湖水藍的弧形沙發,橡木大理石結合的茶幾,黑色烤漆角幾,陀螺椅......客廳內各色材質多樣、姿態各異的家具被有序排列著,再加上綠植點綴,空間在干練精致之余,更顯出生機勃勃的氣息來。 沙發背后便是因女主人愛好而特意設置的休閑茶室區了,背景的藝術壁畫烘托雅致氛圍,兩側書柜用來收納主人心愛的藏書,靠近陽臺的地方還做了貓爬架,喵主子們當然也不能怠慢啦~ 餐 廳 Dining Room 餐廳做島臺餐桌一體式設計,實用性和使用感都很好,黑白搭配帶來明凈的視感,自然的石材肌理配合空間情境,更顯素雅沉靜。 廚 房 Kitchen 廚房,淺色模壓櫥柜門帶來輕盈、舒緩的視覺體驗,黑色把手干凈利落,頂部做白色集成吊頂,空間更加明亮。 廚房靠近餐廳的地方延伸出去做了一塊西廚區,吧臺搭配高腳凳,閑時品一杯紅酒,嘗一嘗親手做的糕點,別有一番情趣。 臥 室 Bedroom 芥末黃提供主臥進門的第一視感,帶來鮮活的生命力,也是主人對美好生活的積極期許。 主臥真是滿滿的女王氣質!宮廷色鋪底,背景墻結合浮雕質感的凹凸藝術硬包,個性特質拉滿,窗邊設置獨立浴缸,品質生活更上一層樓。 融合多種材質元素,以現代風格的利落表現結合中式古典的優雅個性,成就別具一格的氛圍感。 黑色鐵藝百葉窗搭配黑白花磚,陽光從間隙里參與進來,空間里點滴都是時光流淌歲月如歌的美好記憶。 床尾的梳妝空間,奶黃色背景搭配梅紅的矮凳和水藍色梳妝臺,飽滿的色彩極具張揚個性。 客房,淺青色背景結合藤編材質,營造清朗舒適的睡眠環境,宛若美好的早春時節。 衛 生 間 Toilet 衛生間墻地面由石紋瓷磚鋪就,深淺不一的灰色打造層次感,整體空間明亮,現代感強烈。
























免費
免費申請戶型規劃
專屬設計師免費1對1全程服務
已經有3772人申請
24小時免費咨詢電話
400-8800-618
你家預算
108080元