
南鴻裝飾7月全體設計師會議精彩概覽
入伏之后,天氣似乎只剩下了熱,熱,熱。

出門就能感受到熱浪滾滾,每天全靠空調吊著一口氣。
雖然天氣炎熱,但是咱們南鴻的小伙伴依然準時地開始每月一次的大會流程,給大家點贊!

本次會議上,總共有七位設計師帶來了作品分享,還有兩大合作品牌商到場,以及產品部的同事帶來了展廳上樣的最新情況,一起來看看!
? MVP作品
全案組王佑飛 / 黃龍世紀苑

本次PK賽最佳作品,是來自我們全案組王佑飛老師的黃龍世紀苑。屋主經營外貿公司,常年旅居日本,非常喜歡日式的風格和功能分區,對細節的要求也很高。
戶型圖一覽▼

本案為子母套房戶型,針對三代同堂設計。戶型優點是方便照顧家人的同時三代人的日常起居不會相互干擾,缺點則是戶型缺角多,公共區功能重疊,進門過道長,整體動線凌亂等。

改造思路:①雙玄關設計;②環繞動線(打通空間,簡化交通);③動靜分區,優化房間朝向;④去客廳化,將客廳打造為注重家人互動的多功能區域。
效果圖一覽▼


現場施工▼

城東分部王妙子 / 三堡南苑

本案為126方現代風格的作品,主題定位在高級、簡約、大氣。案例整體保持簡約的格調,以高級灰為主色,軟裝上加入活潑的跳躍色,呈現利落干凈的家居氛圍。
實景圖一覽▼

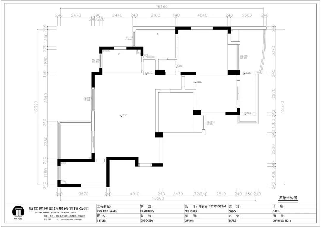
設計三部許麗麗 / 紅街公寓

紅街公寓是許麗麗老師早前的一套現代輕奢風格作品,業主是一對熱愛生活的90后夫妻,家有兩個可愛的公主,需求是溫馨時尚。
戶型分析▼


改造思路:次衛門方向更改;次臥向兒童房借了衣柜的空間,兒童房則將陽臺包進,這樣兩個區域都有了足夠的面積;餐廳增加兒童玩樂區。
實景欣賞▼


▲客廳呈開放式布局,家具間不同材質的碰撞,打造輕盈時尚的生活環境。電視背景墻以地臺取代傳統電視柜,視覺效果統一大氣。


▲餐廳與陽臺相鄰,絨面的磚紅色長凳和些許金色元素點綴出輕奢格調。


▲廚房的木質櫥柜簡潔清爽,主臥的墨綠色背景墻打造靜謐氣氛。
科技城分部傅靜 / 杭州公館

傅靜老師此次分享了她的一套港式風格作品。色彩方面主要運用了褐色、灰色、米色等,簡單而不跳躍,搭配在一起又十分和諧,賦予空間強烈的高級感!
實景欣賞▼


▲開放式客廳布局,以特別的線條設計來展現港式的前衛時尚,大量的軟裝搭配讓整個客廳不會顯得單調,總體上給人自然簡潔、和諧寬敞的感覺。

▲臥室以白、灰為主色調,保持著干凈簡單的調性。


▲衛生間與廚房的設計均是潔凈的白色打底,將明凈的空間感進一步放大。
設計二部計菁菁 / 雅居樂國際花園

計菁菁老師的這套作品也是溫馨的日式風格,戶型約為97方,屋主是位獨居女生。日式風格與現代簡約風一樣,既經濟實惠,又顏值在線,是很多人的心頭好。
戶型圖一覽▼

實景圖一覽▼

▲美美噠日式家居~
設計六部劉東軍 / 新世紀花苑

本案是一套侘寂風作品。侘寂風嚴格意義上來說也是日式風的一種,它的特點是用各種相對粗糙、樸素的形態,來詮釋“不依托外在”的自然之美。
實景圖一覽▼


蕭山分部汪燕紅 / 江南學府

本案為151方現代輕奢風格的作品,簡約的空間和華麗端莊的軟裝、顏色搭配,注重品質感與設計感,自然凸顯一種低調的奢華氣質。
實景圖一覽▼






會議上,南鴻的兩大合作品牌商東箭集團與方太集團的陳總、趙總特地到現場為大家做了詳細的品牌介紹和相關產品知識,產品部的同事則帶來了最新的展廳產品上樣情況。

△祝董為各業績優秀的設計師頒獎
會議的結尾,李總發表講話,重點指出了目前設計師工作中常見的一些問題,包括與客戶的溝通,公司不同部門之間的配合等等,并點明了之后的改進方向,希望各設計師都能精益求精,不斷提升自己的業務、服務水平。

祝董在最后對公司今年目前做出的業績給予了肯定,他表示,家裝市場形勢在不斷轉好,南鴻通過“口碑”推進的市場布局也收到了日益良好的反饋,在此情形之下,南鴻全體員工更要秉持初心,孜孜不倦地將“品質交付”四字貫徹始終。
免費
免費申請戶型規劃
專屬設計師免費1對1全程服務
已經有3772人申請
24小時免費咨詢電話
400-8800-618
你家預算
108080元