
麗晶國際 | 這復古悠揚的味道,有一種無法言喻的浪漫!
“當我準備離開時,
我才知道,
所謂樹洞其實就在每個人的心中...”

地址:寧波麗晶國際
戶型:復式
面積:112㎡
風格:復古美式
設計施工:浙江南鴻裝飾
■ 關于作品
初看到這套作品的時候,小鴻有一瞬間想到了王家衛導演的那部《花樣年華》。電影中,張曼玉穿著旗袍,美得不可方物,而我們這位詩情畫意的女主人,剛好也對旗袍情有獨鐘。窈窕佳人,顧盼生姿~
家對于人們的心靈總有一種奇特的治愈感,這套房于她而言,也正是這樣一劑絕佳的治愈良藥,可以消解所有疲憊與煩惱。
基于女主人的喜好,本案在空間中融入了大量復古元素,帶來賞心悅目的精致格調,清雅復古的綠與渾厚的棕色系家具碰撞,傳遞出無法抗拒的優雅與質感。

整整8個月的裝修歷程,對雙方來說都是一次愉悅且難忘的體驗,在此也衷心祝福美麗的女主人一家,往后的日子,都如天上的繁星般,熠熠生輝。
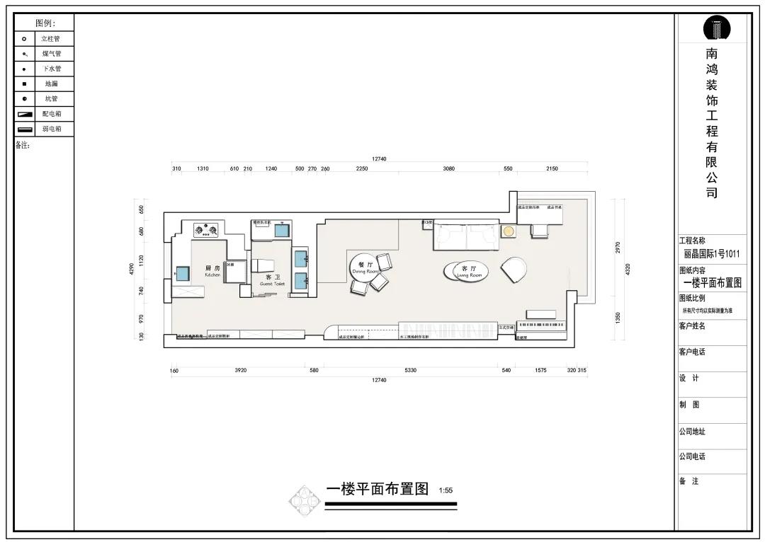
■ 關于戶型


戶型整體呈狹長布局,從門口進來依次是廚房-客衛-餐廳-客廳,風格上保持統一,色調以棕色為主,輔以墨綠、白色、金屬色點綴,彰顯復古美式的調性。




玄關3米長的鞋柜區延伸進來至樓梯下的餐廳空間,餐邊柜長約2米3,墻面鋪貼彩色孔雀羽瓷磚,清新又顯活力。棕櫚樹背景一路鋪展上樓梯,成為本案一大亮點。
空間格局緊湊,該利用的地方都要利用到,樓梯下方還做了一個mini儲物間,用以緩解收納壓力。



客廳,簡潔的陳設釋放出日常生活所需的空間感,復古綠的棕櫚樹定制墻畫和深棕色系家具形成強烈對比,消弭藝術與生活的邊界,墻角的留聲機成為點睛之筆。

靠近陽臺的地方為主人劃出了鋼琴區,地面特意用復古花磚界定邊際,增強儀式感。每日伴著晨光或夕陽輕輕彈奏,是無法言喻的一種浪漫。
廚房與客衛,功能區面積并不寬裕,不過供一家三口日常生活還是綽綽有余的。

廚房并不完全開放,外側延伸出小吧臺稍加隔擋了一下。墻面選擇拋晶磚,光澤度高并且附著金線的磚面呈現了較為奢華的觀感,契合空間整體的氣質。

客衛置入一大一小兩個洗衣機,原有的淋浴區改為主人日常洗衣用的家務區,雙臺盆設計,盡量提升實用性能。



私密的主臥空間散發出古樸的氣息,正對應主人恬淡安然的心境。低調的色彩,簡單的裝飾,輕柔細膩地勾起人心中一抹埋藏在時光深處的記憶。

主衛相對來說更富有現代感,青草綠的柜面搭配金色鏡框、龍頭與把手,讓衛浴空間更加精致、摩登!
免費
免費申請戶型規劃
專屬設計師免費1對1全程服務
已經有3772人申請
24小時免費咨詢電話
400-8800-618
你家預算
108080元