
青秀瀾灣 | 日光清照,婉靜悠長

項目信息
/
地址:青秀瀾灣
城市:中國 寧波
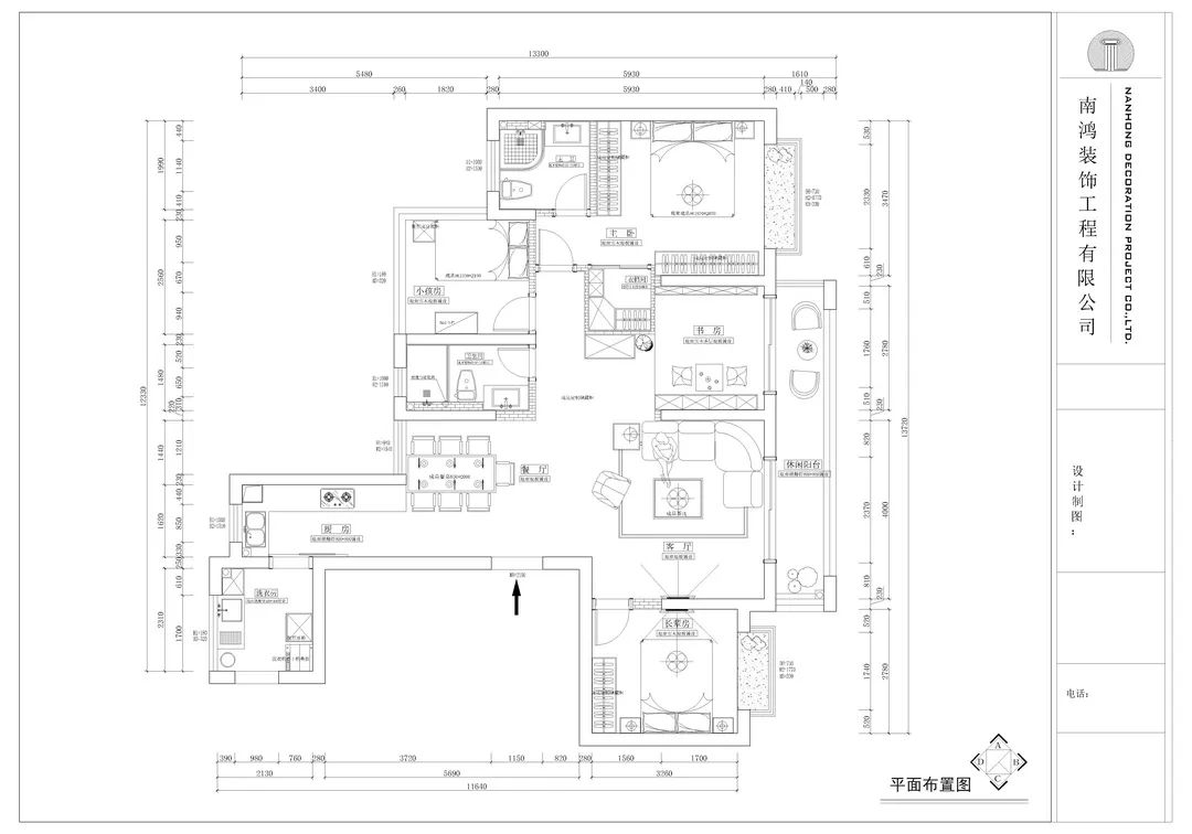
戶型:四室兩廳
面積:115㎡
風格:現代風格
設計施工:浙江南鴻裝飾
本案為三口之家,設計師從細節著手,主基調采用大面積原木與乳膠漆元素,溫潤的材料與良好的采光賦予空間大量溫暖的情感,同時整體戶型也應屋主需求進行有序改動,如廚房、書房打開,地臺設計也為日后的功能變動埋下伏筆。
戶型一覽
▼



空間擁有著規整而簡凈的外形,大地色打底,輔以簡單的家具擺設,演繹樸素大方之美。
明亮的日光被百葉簾過濾,淡淡的光暈籠罩,與自然不期而遇的驚喜,就這樣悄悄藏進室內的每個角落。


淡雅的色調、天然的材質、明快的線條,加上開放空間的通透感加持,氣質無可挑剔,讓人能盡情在家的溫暖懷抱中滋養身心。

電視背景墻是主流的收納式設計,適度留白能保證空間的自在呼吸,不讓視覺產生擁擠感。

午后陽光正好,安安靜靜地讀本書吧,再泡杯新買的花茶,完美!

空間中,簡易的黑色長桌散發沉穩氣息,木飾面做餐廳背景,樸實安寧,仿佛在訴說著某個久遠的故事。
開放式廚房動線流暢操作高效,空間也因此變得更加開闊通透。


這個打開的書房算是一個多功能空間,以地臺的形式呈現,開放式布局強化與客餐廳的交互,增強家人間的情感交流,也方便日后的功能改動。

主臥的采光也是非常充沛,讓居住者能最大限度地感受到一天中光影的自然變化。立面結合木飾面和乳膠漆,漆色接近淡淡的米黃,加上北歐風的床品搭配和隱藏燈帶,輕松營造舒適自在的空間氛圍。


空間的美觀,并不在于豐富的色彩或是昂貴的用材,很多時候,正是各項完善的功能,才能最大化居者的幸福感受。
上一篇:家有老人,裝修更要注意這幾點
下一篇:地下室別再只做儲物間啦!
免費
免費申請戶型規劃
專屬設計師免費1對1全程服務
已經有3772人申請
24小時免費咨詢電話
400-8800-618
你家預算
108080元