
178㎡意式極簡,高級感描繪生活之詩,又是一套絕美精裝房改造!
就像無拘無束的風
在時光里輕盈地走
...

本案是一套四室兩廳三衛格局的精裝房改造項目??筒蛷d帶雙陽臺,視線開闊。臥室面積也還不錯,總體看上去四平八穩。原本買點家具就可以入住了,但是女主人對生活品質是非常有追求的,所以找到了南鴻決定進行房屋改造。

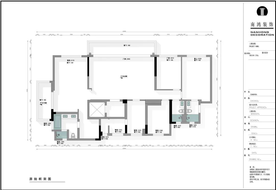
▲改造前
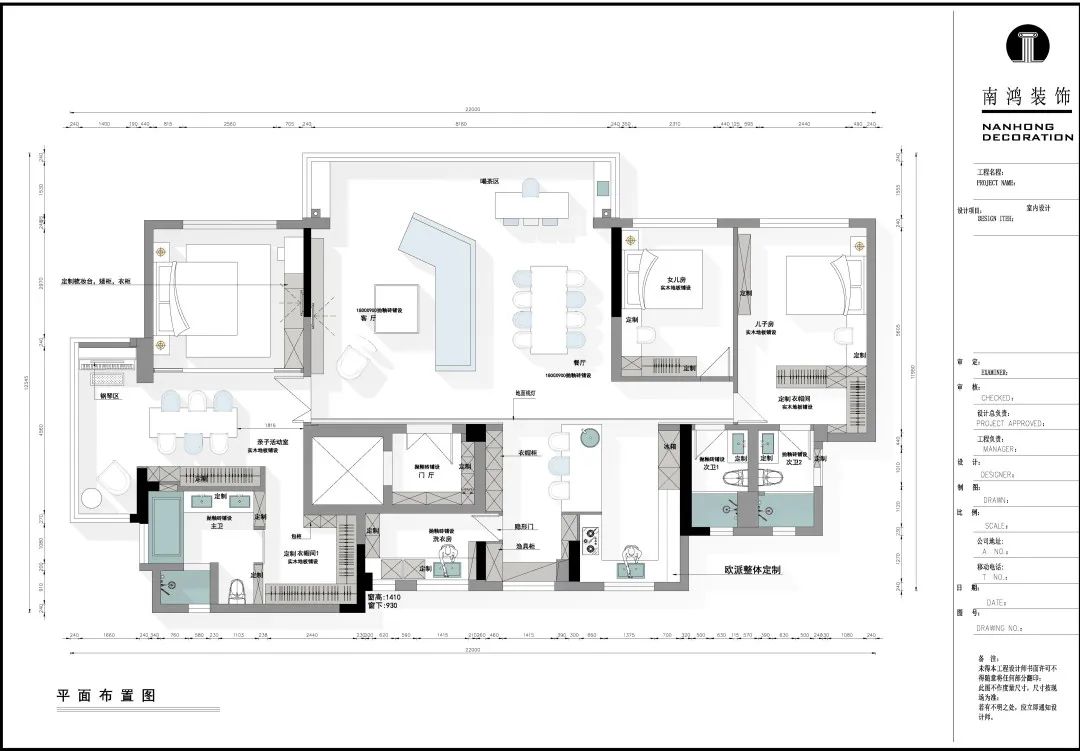
業主對原廚房的面積不太滿意,加上父母不同住,所以省去了一個臥室,和廚房并在了一起。客餐廳在一條動線上,從南到北一整個大通透,顯得相當闊氣。廚房內安置一個2.4mx1.2m規格的大巖板島臺,早餐臺、酒吧臺、茶桌、料理操作臺等多種功能集于一身。一日三餐,雖是平凡,卻也讓人心安。

全屋采用無主燈設計,餐廳的線條燈質感滿滿,書墻的燈帶,柜內的各種隱藏光源,每個角落自由規劃的插座,讓便利性滲透整個居室,居住在其中的人便會愈發享受宅家的日子,而這種便利性對于身處“疫情時代”的我們來說,尤為重要。

整體風格遵循意式極簡的設計思路,咖色做主導,搭配不同深淺不同材質的灰,構筑了一個氣質清雅、端莊大氣的生活空間。大量的無邊框設計和整齊劃一的柜體,加上極簡線條元素,讓空間干凈規整,開闊而舒朗。

▲原始戶型圖

▲平面設計圖
設計說明:
①舍棄了一個臥室,和原廚房打通,做成中西結合的開放式結構。
②木飾面加隱形門的設計手法,弱化門框的存在感,墻面更加簡約和整體。
③保留三間臥室,主臥增加木門隔斷形成半開放式格局,可開可合,靈活機動。
④男孩房面積不錯,但是衛生間門直沖著床,不太合理,所以在兩者之間增加了步入式衣帽間,增加儲物的同時,也把衛生間的潮氣和濕氣給隔絕掉。
客餐廳 /
Living Room & Dining Room

客餐廳是南北通透的大橫廳格局,寬闊的場域包容流暢而自由的活動路線,讓每一位居住其中的人都能感知到充分的自在?;摇⒆?、白為主的色系打造溫厚體驗,光線透過陽臺的軟簾照進室內,淡雅、輕柔、和煦的磁場就此生發、蔓延。

客廳背景墻以木格柵為底,主臥房門隱于其中,垂直豎紋拓展了空間的縱向敘事。木材的溫暖碰撞石材的冷冽,居室于對立統一中尋得了恰當的平衡。

淺色的沙發、地毯用細膩的質感為極簡現代空間帶來更多溫度。餐廳背景墻元素與客廳保持一致,頂部裝設線條燈,空間藝術氣質愈發濃厚。木元素在各處框架適時出現,串聯起不同區塊間的自然情愫。


設計以一種接近生活本質的視角,盡情描摹著點滴日常的豐富特性。
廚房 /
Kitchen


開放式廚房包容寬敞的西廚區,島臺作為補充,讓日常生活變得高效便捷,深灰色柜面盡顯低調酷雅的氣質。

桌椅、吊燈、掛畫的搭配布置簡練而不失優雅,跳色的點綴打破單調,簡凈中內蘊著豐盈。島臺可做收納、操作臺和餐臺的補充,方便休閑時喝咖啡、品茶、做甜點等。有時親朋好友來聚餐,這兒又會閃亮變身為一個互動頻繁的社交中心。

超大的廚房空間能讓主人“大展身手”,盡情享受烹調美食的樂趣。白色百葉簾調節光線,墻面增加掛件收納,保證區域整潔。高柜融入電器,全面提升使用舒適度。
臥室 /
Bedroom

主臥通鋪魚骨拼地板,由于內部空間很大,便做了木質移門代替實體墻來隔斷睡眠區和其他區域。白天拉開移門,空間瞬間變得開闊;夜晚關上,就形成隱私性好、安全感十足的睡眠區域,空間利用相當靈活。墻面與頂面的隱形光源勾勒甜美的夢境,一切都是恰到好處。


兩間為孩子準備的臥房均是結合孩子的愛好與性格而設計。男孩房基調穩重,簡約的立面層次刻畫高級質感。女孩房氛圍更加的恬淡輕松,淺淺的肉色讓空間平易近人,可愛的玩偶透露孩子天真美好的童年夢。
--
·項目信息·
項目名稱:寧玥府
設計風格:意式極簡
項目類型:平層
項目地點:中國·寧波
項目面積:178㎡
項目服務:設計·施工·硬裝·軟裝 全案設計
設計單位:浙江南鴻裝飾
施工單位:浙江南鴻裝飾
- Thanks For Watching -
免費
免費申請戶型規劃
專屬設計師免費1對1全程服務
已經有3772人申請
24小時免費咨詢電話
400-8800-618
你家預算
108080元