
各路手辦明星參演,在這間華麗麗的夢想之屋!
人生漫長,晴雨交加,
但若是心懷熱愛,
即使歲月荒蕪,
亦能奔山赴海,靜候花開。
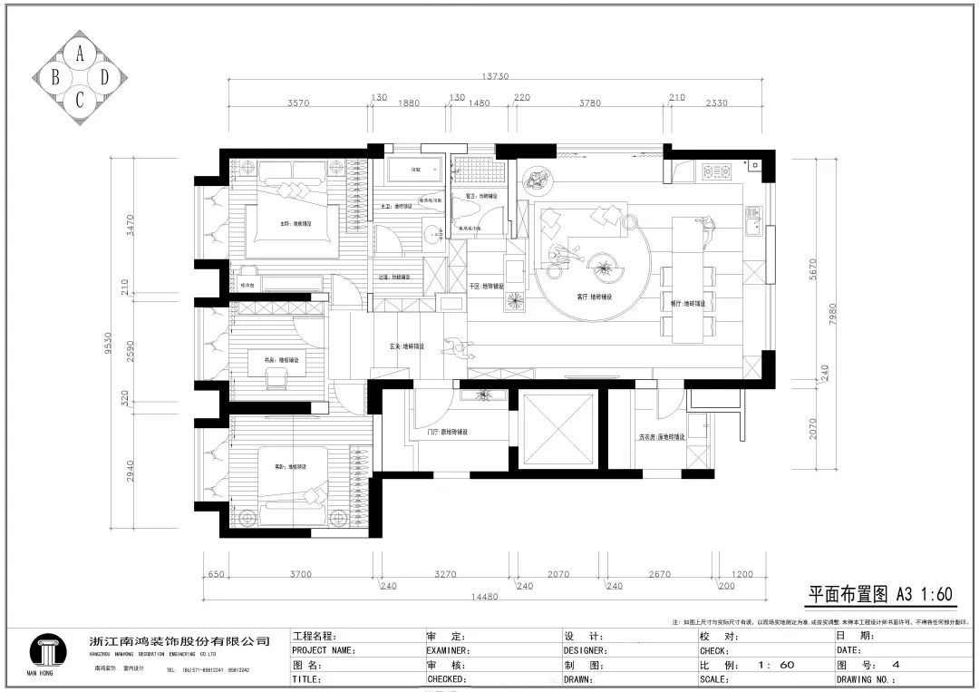
項目信息 地址:奧克斯 城市:中國 杭州 戶型:三室兩廳 面積:130㎡ 風格:現代 設計施工:浙江南鴻裝飾 作品前言 本案業主是一位單身男性,從事IT行業,喜歡游戲電競,尤其熱衷各類手辦。 家是非常私人化的地方,居住者的愛好、習慣、信仰等需要被好好地轉換為設計語言進行充分表達,如此才能將“個性”兩字真正落到實處。 戶型方案? 實景呈現 >>客廳 空間著力陳設現代設計的包容和簡約之美,從功能出發,讓生活回歸本質。淺色基調塑造溫和感受,明凈的光線讓居家更加愜意舒適。 業主是狂熱的手辦愛好者,整個家也是基于此為他量身打造的,玻璃柜、開放柜、展示臺,家成功化身為各路手辦明星的舞臺。漫威英雄、二次元美少女、航海冒險少年...仿佛跌入了一個夢想中的異世界,誕生一種強烈的幸福暈眩~ 背景墻的木質柜和格柵木飾面形成連貫流暢的塊面感,樸素自然,為現代風的空間帶來了更多溫度。 >>餐廳 餐廳設計上采用了島臺+落地長桌的模式,可以根據場景滿足6-8人同時就餐的需求。極致簡潔,卻能夠彰顯平凡的享受與追求。 黃鴨色餐椅在室內起到一層明亮的點綴作用,巖板材質與空間格調相輔相成,進一步提升質感。 >>廚房 基于業主平時的飲食習慣,廚房做開放式設計與餐廳結合,優化動線的同時節省空間,也能增強區域的采光與通透感。白色的櫥柜,再加嵌入式的家電,都讓視覺變得無比純凈! >>過道 過道空間依托于光影效果變得幽邃沉靜,隨處可見的個性手辦讓空間充滿了生動的趣味性。 >>臥室 臥室延續簡約柔和的主色調,勾勒安穩入睡的靜謐環境。 >>衛生間 衛浴做干濕分離,隱藏式光源烘托沉穩優雅的氛圍。壁掛式馬桶,上方正好形成一個收納的空間,幫助維持室內整潔。















免費
免費申請戶型規劃
專屬設計師免費1對1全程服務
已經有3772人申請
24小時免費咨詢電話
400-8800-618
你家預算
108080元