
入戶無玄關?那咱就造唄~
玄關這塊區域在整個戶型設計中,可能稱不上是最重要的,但也絕不能被忽視。
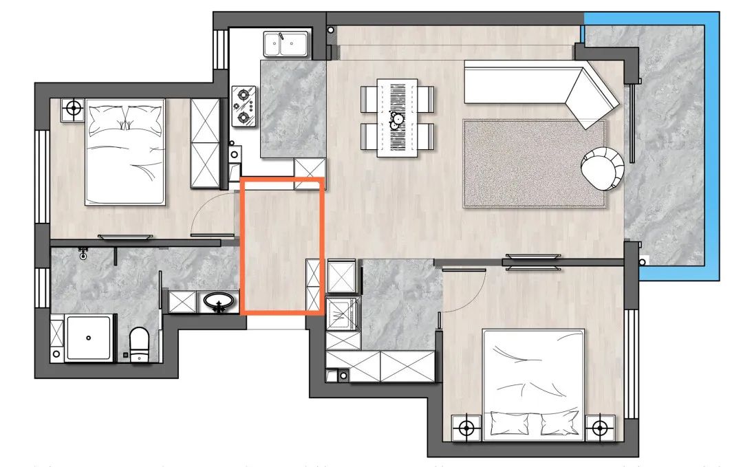
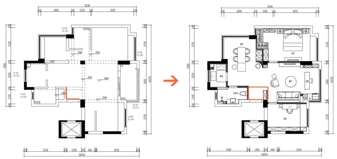
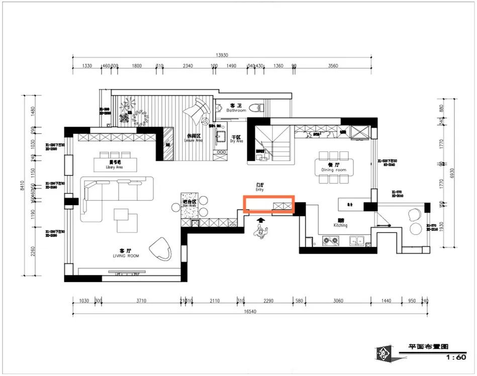
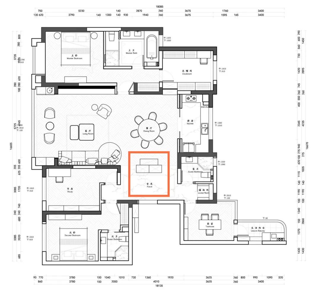
畢竟,玄關可承擔的功能有很多:鞋帽收納、換鞋、整理著裝、打造家的第一印象... 有一個玄關,就能讓咱們的出入戶體驗更加流暢和便捷。 但是,很多戶型天生并沒有門廳區域,該怎么改呢? 誒,這個方法就有很多啦。沒有天然玄關,咱就自己造唄~ 造玄關的通用形式 造玄關無非就是用收納柜體或隔斷的形式來為家劃分出這塊區域。 ① 玄關柜 玄關需要收納的,不用多說,上玄關柜! 小戶型或居住家庭成員不多的,可以用成品的矮柜節省空間。 玄關柜中部和底部留空,能擺放的物品更多樣,功能上更加實用。 ② 隔斷 常見的有玻璃隔斷。玻璃隔斷的光影效果好,很適合用來改善區域采光,以及營造通透視感。 木格柵隔斷的造型感強,適合用在一些原木、中式、侘寂風格之中。 現代風格的中大戶型中,這種懸浮式的柜體和懸浮墻體做隔斷,效果也是極好的,不會顯得太過厚重。 隔斷可以用的材質和形式非常多,大家按喜好選擇即可。 ③ 組合 當然,上述單個形式之間也可以進行組合,以進一步增強玄關的功能性和美感。 (玻璃+格柵) (玻璃隔斷+卡座) 具體戶型具體分析 接下來,我們就需要根據實際的戶型來做玄關的調整。 以我們小鴻家業主的幾套方案為例,一起來看看設計師都是怎么“無中生有”造玄關的吧~ 在【衍新家園】的方案中,設計師選擇將墻體打掉,另一側剛好是衣帽間,于是做了一組背對背的柜子,底部留空方便換放鞋。 【龍湖天麓府】這套戶型的入戶口,也是同樣的相鄰一堵墻,設計師選擇做到頂的玄關柜,還在過道處借與廚房的隔斷設計了南洋風端景,巧妙地構筑入戶儀式感。 【海德公園】這套小戶型方案,則利用玻璃磚的形式與客廳隔斷,采光與裝飾的效果絕佳,并搭配成品矮柜和掛衣桿,增強玄關的實用性。 【龍湖春江彼岸】也是類似的格局,不同的是,設計師這次借了餐廳的柜子,大大節省了空間,換鞋凳的形式也方便日常出入戶能坐著換鞋。 最常見的無玄關的形式,即入戶門在墻中間,面對開闊區域,往往會讓人不知如何下手。 通常我們可以考慮沿墻面打柜子,位于【傾城之戀】小區的業主家正是這樣。 這戶人家位于【臻華府】,一側同樣是做玄關柜,并且正好面對一堵墻,設計師便裝飾了掛畫,與客廳之間也能形成比較好的聯動。 如果戶型面積較大,入戶門正對處又沒有墻體非??諘绲那闆r下,我們可以像【歡樂海岸】這家一樣,造出一面柜體隔斷,這樣與內廳之間就有了一個視覺遮擋。 【悅西臺】也是一樣,入戶正對公區域,選擇了黑色不銹鋼鏤空板+矮柜的隔斷,簡潔又契合整體色調氛圍,鏤空的形式也不影響區域采光和通透感。 【臨江花園】這戶的格局則比較狹長,左右是客餐廳,玄關在中間,我們在相鄰餐廳一側造了T形隔斷,這樣餐廳可以放置冰箱,玄關也能做出玄關柜。正對口的墻面設計師還特意加入綠色跳色裝飾,來增強空間的趣味感。 如果擔心戶型面積小進門空間太窄,矮柜+擺件+裝飾畫三者組合一下,既能給玄關足夠的儀式感,也不會擠占太多視覺空間,可以說是小戶型的首選啦。 玄關做的好,對于提升家的實用性來說幫助還是很大的,大家記得根據整體的戶型面積和玄關位置、形狀來做針對性調整哦~




























免費
免費申請戶型規劃
專屬設計師免費1對1全程服務
已經有3772人申請
24小時免費咨詢電話
400-8800-618
你家預算
108080元