
自由動線+全屋收納,這套底躍私宅的“平衡力”太強悍!

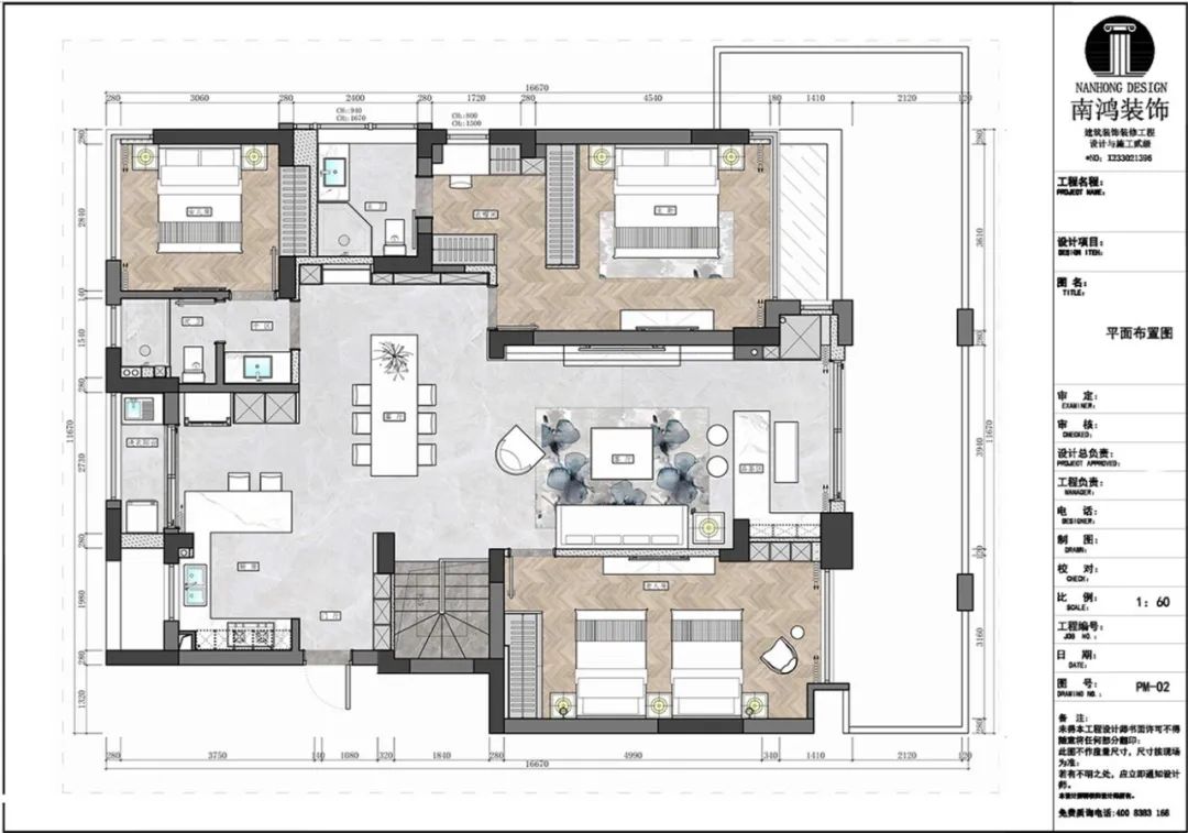
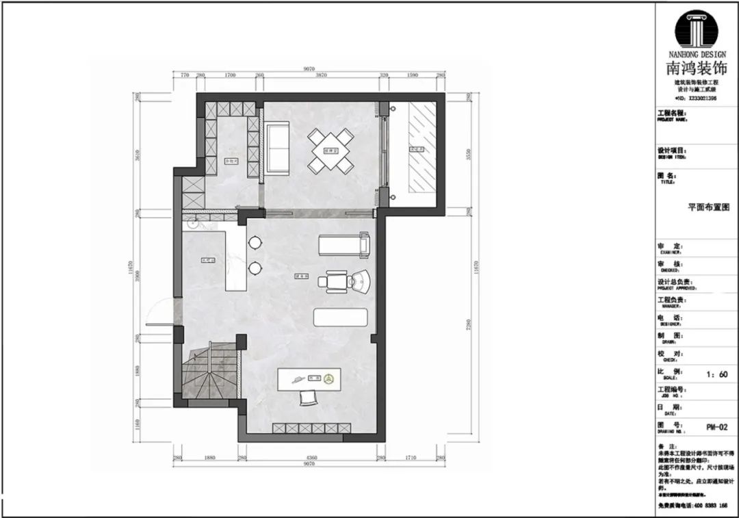
項目信息 地址:大華西溪 城市:中國 杭州 戶型:底躍 面積:237㎡ 風格:現代 設計施工:浙江南鴻裝飾 家承載著人們對理想生活的美好期許,安適感、溫度感、自由感,當空間擁有了這三感,才是一個真正值得落地的私宅設計。 現代風格擁有不會過期的美學底色,本案將自然的靜謐與現代生活美學相結合,打造了清雅與安適并存的居家空間,匹配業主的格調和希冀,讓居住日常回歸本真,賦予全方位的舒適體驗。 Layout Design 戶型方案 一層▲ 地下室▲ Hallway 玄關 玄關鋪就自然的原木底色,釋放靜謐安然的氣息.. Living Room 客廳 客廳的硬裝底色十分簡潔明朗,低飽和度的軟裝搭配營造一定的層次。 由客廳到餐廳、廚房,視線的自由延展拉伸了整個空間的尺度,賦予了生活更廣闊的視野。 電視背景墻用整面的巖板呈現輕奢質感,在靠近陽臺一側,設計師還利用天然木材做了很好的視線延伸。 意式極簡風科技布材質沙發組合大理石臺面的異形茶幾,規整的家具線條予人得體大方之感,背景則裝飾一幅幾何抽象畫,用留白塑出格調。 陽臺規劃出主人的品茶區,置器潤茶、聞香品茗,自在一方天地。 空間的光感分布細膩,點線面多種形式為居室創造出豐富的光效,打造空間層次感。 Dining Room 餐廳 客餐廚做一體式開放設計,雙面采光讓空間看起來敞亮通透,生活動線得到優化,居住舒適度也大大提升。 素白的空間基底闡釋著返璞歸真的設計理念,餐桌椅與吊燈的線條簡約流暢,整潔有序的功能布局將空間的顏值與實用完美結合。 餐邊柜組合了封閉式門板與木質開放格,豐富場所的視覺形態。 Kitchen 廚房 廚房利用U型結構延伸出吧臺的功能,左右分界的格局,既滿足流暢的烹飪操作需求,也具備強大的收納能力。 Master Room 主臥 主臥區,設計師利用深色的肌理感墻布打造出素雅大方的背景墻,棕色實木旋轉式的創意床頭柜也為空間增添了許多趣味。兩側佐以黑色壁燈和吊燈,為睡眠區添加輔助照明。 Spare Room 次臥 次臥以溫柔的杏色為主基調,ins風的梳妝區+時尚的背景燈飾,使得空間摩登感十足,也高度契合年輕人的潮流審美。 Bathroom 衛生間 衛浴空間的設計同樣簡潔明快,素色的瓷磚加上不落地的臺盆,提供清爽又便利的使用感。


























上一篇:入戶無玄關?那咱就造唄~
免費
免費申請戶型規劃
專屬設計師免費1對1全程服務
已經有3772人申請
24小時免費咨詢電話
400-8800-618
你家預算
108080元